Consulte nossa engenharia para projetos especiais
      << Voltar    


KIT DE REPARO: MACACOS HIDRÁULICOS PARA AVIÕES

MAT - 3006
Diversas aeronaves
3 T


ZELOSO®
DESDE 1956



SEÇÃO I




LISTA DE COMPONENTES



  MAT - 3006
Diversas aeronaves



LISTA DE COMPONENTES





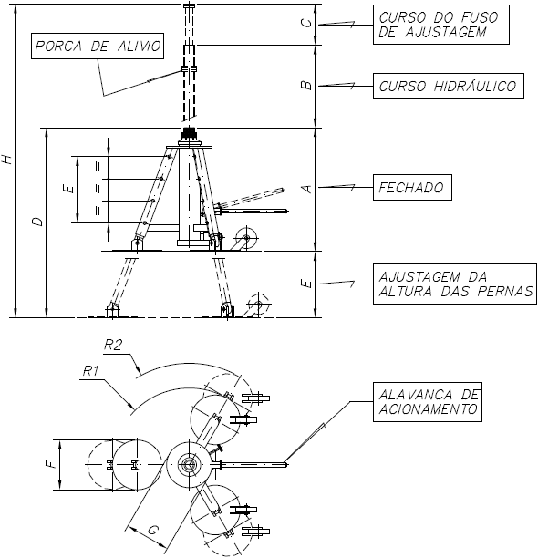
Tabela de dimensões: MAT 3006/4/2 - MAT 5006/4/2



SEM EXTESÃO
PARA ASA BAIXA





COM EXTESÃO
PARA ASA BAIXA




MODELO
DO MACACO
CAPACIDADE (kg) A B C D E F G H R1 R2
MAT. 3006 S/ EXT 3.000 600 400 200 920 320 240 220 1520 370 500
MAT. 3006 C/ EXT 3.000 1550 400 200 1870 320 240 220 2470 768 875
MAT. 5006 S/ EXT 5.000 600 400 200 920 320 240 250 1520 370 485
MAT. 5006 C/ EXT 5.000 1550 400 200 1870 320 240 250 2470 710 825


Tabela de dimensões: MAT 10011

MAT - 10011
Diversas aeronaves










Todos os direitos reservados.



 

Zeloso Indústria e Comércio Ltda
Rod. Régis Bittencourt, 2930 - KM. 296,5
Bairro: Potuverá
06882-700 - Itapecerica da Serra - SP - Brasil
Fone: 55 11 3694-6000
Whatsapp: 11 99116-0493

Os logotipos e marcas apresentados neste site
são marcas registradas.
2026 - Todos os direitos reservados.