Consulte nossa engenharia para projetos especiais
      << Voltar    

 
 
Clique aqui para solicitar orçamento.
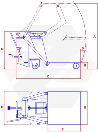
PLATAFORMA ELEVADORA





DIMENSÕES EM MILÍMETROS
   

Plataforma com roletes

Plataforma com elevação motorizada
   

Plataforma elevadora especial com extensão no tampo superior

Plataforma com capacidade de 200 Kgs
   

Tela protetora (NR 12)

Freio de sapata que permite a operação com segurança
   

Plataforma com acionamento a bateria e sistema de roletes livres.

Todos os direitos reservados


Todos os direitos reservados.



Os logotipos e marcas apresentados neste site são marcas registradas.
2025 - Todos os direitos reservados.
 

Zeloso Indústria e Comércio Ltda
Rod. Régis Bittencourt, 2930 - KM. 296,5
Bairro: Potuverá
06882-700 - Itapecerica da Serra - SP - Brasil
Fone: 55 11 3694-6000
Whatsapp: 11 99116-0493