 |
 |
| Com dispositivo para girar 90° |
Com lança para cargas de furo central |
| |
|
 |
 |
| Com berço retirada de bobinas sobre paletes |
Com roletes para transporte de cargas
até a mesa de trabalho |
 |
 |
Empilhadeira com acionamento manual para elevar e transportar bobinas. No carro de elevação base móvel que permite o transporte da bobina em segurança. |
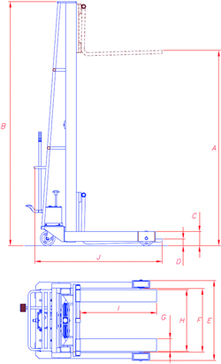
Empilhadeira manual com carro de elevação fechado para 500kgs. |
 |
 |
Empilhadeira especial para 300kgs com acionamento através de bomba hidráulica manual. |
Empilhadeira com dispositivo de freio de sapata que impede sua movimentação em uso, com rodízios de nylon. |
 |
 |
| Empilhadeira especial com cesto para transporte em geral. |
Empilhadeira com elevação hidráulica e sistema de inclinação. |
 |
 |
Empilhadeira especial com dispositivo de movimentação horizontal dos garfos. |
Empilhadeira para 500Kgs com sistema de roletes livres, para movimentação de peças em geral. |
 |
 |
Empilhadeira motorizada para uso de elevação e sistema de garfo para guincho. |
Empilhadeira para elevação e movimentação de tambores em geral, com capacidade de 300kgs |
 |
 |
Empilhadeira com garfos reguláveis através de guia e pernas especiais. |
Empilhadeira para 2.000Kgs com garfos reguláveis e elevação através de sistema hidráulico. |
 |
Empilhadeira com garfos tipo tubo para movimentação de bobinas, pneus e afins. |